1.募集住宅
| 名称 | 住所 |
構造等 (建築年度) |
月額家賃 |
|
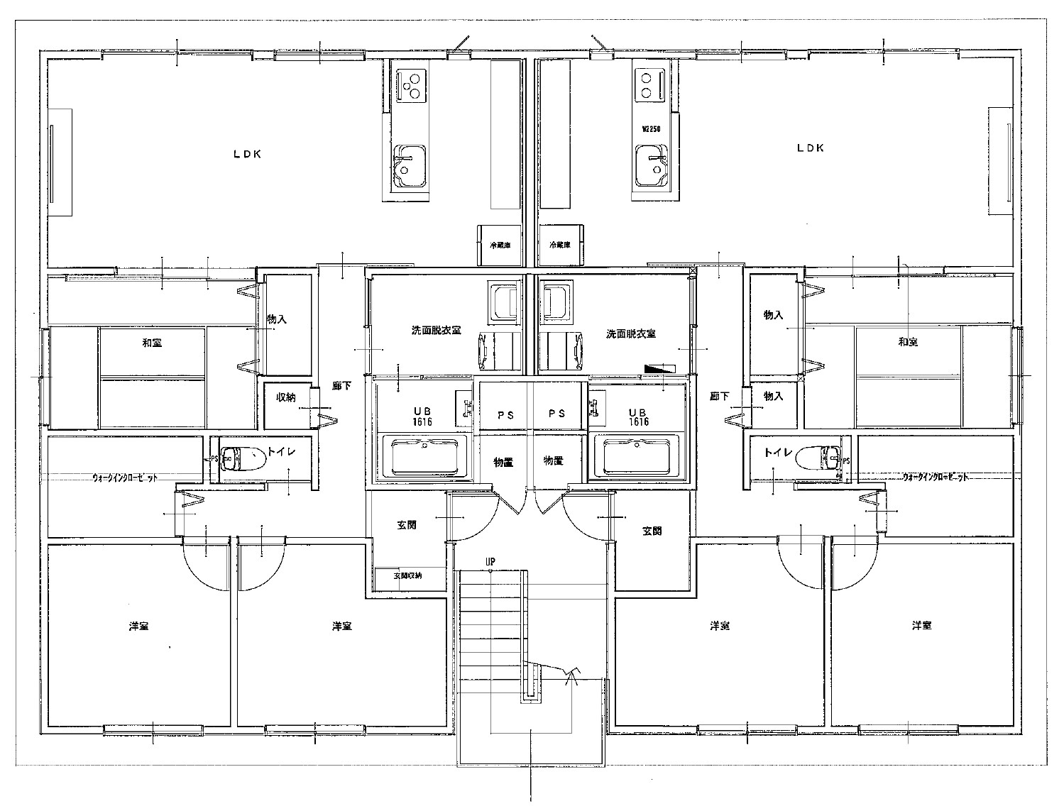
フォレストⅡ(2F) 1戸 |
津和野町森村ハ5-5 |
木造2階 3LDK 87.57m2 (令和5年度) |
60,000円 別途共益費が必要です。 |
2.入居資格
次の条件を満たしていることが必要です。
1 UIターン者や若者等で、現に住宅に困窮していることが明らかな者で定住のための住居を求めていること。
2 家賃その他居住に必要な経費の支払いが確実に出来る者。
3 自治組織に加入し、地域活動等に貢献する意思を有する者であること。
4 入居希望者又は同居親族が暴力団員又は暴力団関係者でないこと。
5 租税公課を滞納していない者
3.入居申込み
1 申込方法 必要書類(入居申込書、住民票、所得証明書、納税証明書)を揃え、入居申込書を役場建設課まで持参(郵送可)
2 募集締切 令和7年11月18日 17時15分必着
3 抽選日等 令和7年11月19日 17時00分から津和野町役場本庁舎(建設課)で実施
4.その他
1 オール電化
2 駐車場無料(2台分)
3 住宅使用料のほか、別途共益費(2,000円)が必要です。
4 入居前に敷金(180,000円)が必要です。
5 連帯保証人が2人必要です。
6 JR山口線 津和野駅まで車で5分
スーパーマーケットまで徒歩1分
コンビニエンスストアまで車で3分
ホームセンターまで徒歩1分
7 物件に関する問い合わせ先
津和野町役場建設課
〒699-5292 島根県鹿足郡津和野町枕瀬218-18
電話番号 0856-74-0081

外観写真 内観写真
間取り図
このページを見た方はこんなページも見ています
このページに関する
お問い合わせ先
- 本庁舎 建設課
-
- 電話番号: 0856-74-0081
- FAX番号: 0856-74-0064